График работы:
Пн-Пт с 9:00 до 18:00
Мастер Хаус
Офис: г. Вологда, ул. Сергея Орлова, д. 4-а, бизнес-центр "Беладжио", офис 436
Производство: Вологодская обл., поселок Дорожный
График работы:
Пн-Пт с 9:00 до 18:00
vts2026@mail.ru

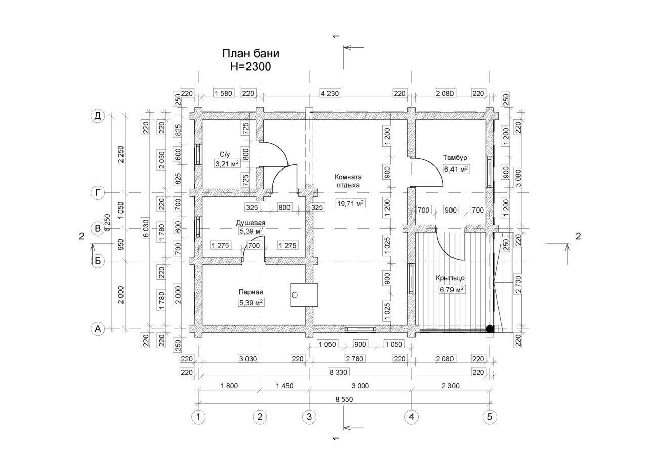
Баня БН-6

Баня БН-6
Площадь
47 м²
Количество этажей
1
Количество комнат
1
Стоимость
от  1 380 000 ₽
Оставить заявку
Планировка
Вложение
Напишите нам, мы ответим на все ваши вопросы
Заполните форму, и менеджер свяжется с вами для обсуждения деталей