График работы:
Пн-Пт с 9:00 до 18:00
Мастер Хаус
Офис: г. Вологда, ул. Сергея Орлова, д. 4-а, бизнес-центр "Беладжио", офис 436
Производство: Вологодская обл., поселок Дорожный
График работы:
Пн-Пт с 9:00 до 18:00
vts2026@mail.ru

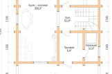
Дом из бревна Д-139

Дом из бревна Д-139
Площадь
140 м²
Размер
8 × 11 м
Возможные материалы
бревно
Стоимость
9 500 000 ₽
Оставить заявку
Напишите нам, мы ответим на все ваши вопросы
Заполните форму, и менеджер свяжется с вами для обсуждения деталей